Direkt zum Seiteninhalt

vue. Augenzentrum Grenchen - Marcel Baechler - Innenarchitektur, Architektur & Praxisplanung

vue. Augenzentrum, Grenchen

Auftraggeber: vue. Augenzentrum AG
Realisierung: 2023
Auftragsart: Direktauftrag

Standort: im Ärztezentrum Grenchen, 2. OG

Innenarchitektur: Marcel Baechler, Innenarchitekt vsi.asai.
Mitarbeit: Martina Hofer
Bauleitung: Marcel Baechler, Innenarchitekt vsi.asai.


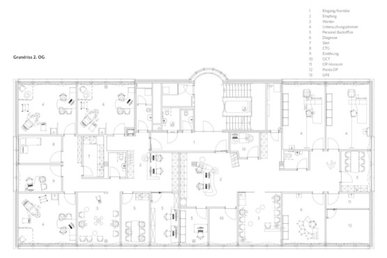
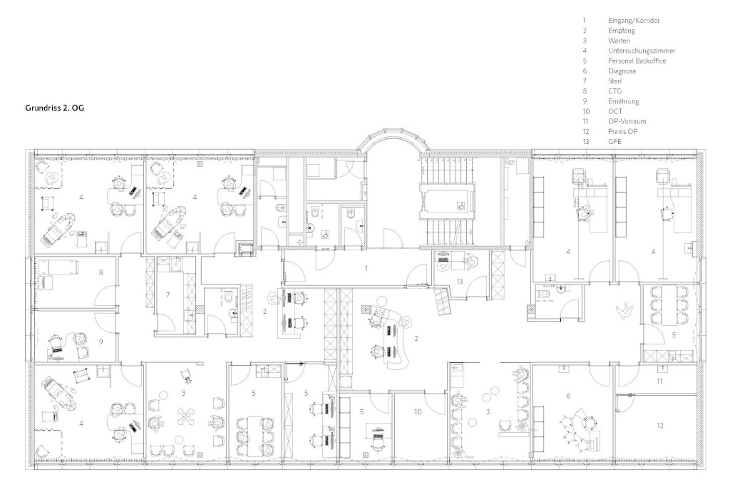
Wir erhielten den Auftrag im 2. Obergeschoss des neuen Ärztezentrum Grenchen das vue. Augenzentrum Grenchen zu gestalten und zu realisieren.
In diesem Projekt waren wir für die gesamte Entwurfs-, Ausführungs-, Sanitär- und Elektroplanung mit Bauleitung verantwortlich.

Bei der Planung einer Augenarztpraxis ist es wichtig, eine angenehme und funktionale Atmosphäre zu schaffen. Der farbige Grauton an den Wänden vermittelt Ruhe und Entspannung, was für Patienten in einer medizinischen Einrichtung von Vorteil ist. Das eichen farbige Vinyl verleiht dem Raum zusätzliche Attraktivität und ist hygienisch hervorragend zu reinigen und pflegen. Im Bereich des Praxis-OP verlegten wir einen ableitfähigen Kautschuk-Bodenbelag. Mit der Idee des Empfanges in massiver Eiche mit eingefrästem Auge verleihen wir der Praxis ein besonderes Gesicht. Im Wartebereich werden bequeme und altersgerechte Sitzgelegenheiten angeboten. An der Fensterfront befindet sich eine kleine versteckte Nische als Kinderecke. Im Weiteren haben wir in den Untersuchungszimmern die korrekten Raumgrössen erarbeitet, um den Augenärzten die beste Möglichkeit der Augenheilkunde für die Patienten anbieten zu können. Die Ophthalmologie Praxis verfügt über modernste Technologie, um eine genaue Diagnose und Behandlung zu gewährleisten.
Visualisierung | Realitätsfoto (Schieber nach Links und Rechts bewegen)
Vor- | Nachher (Schieber nach Links und Rechts bewegen)
Line
Zurück zum Seiteninhalt